

Автокран HOWO NX — это универсальное тяжелое транспортное средство, сочетающее в себе эффективный подъем и надежную транспортировку. Созданный на шасси HOWO NX 8×4, он обладает высокой мощностью и оснащен краном Palfinger SPS40000, обеспечивающим максимальную грузоподъемность 16 тонн и крутящий момент 40 тонно-метров. Его пятисекционная телескопическая стрела выдвигается на 19 метров и обеспечивает полное вращение на 360 градусов, что делает его широко применимым для подъема тяжелой техники и транспортировки материалов в муниципальном строительстве, горном деле и других областях.
Рабочая мощность :
16 tonsТип каюты :
HOWO NXРазмеры (мм) :
12000×2550×3930Система привода :
8×4Колесная база (мм) :
1800+4600+1350Специфика двигателя :
371HP/WD615.47Коробка передач :
HW19710Передняя ось (кг) :
6500/7000Задняя ось (кг) :
17500/17500Примечание :
XCMG crane, UNIC crane, knuckle boom crane is optionalАвтокран HOWO NX 8×4 — это многофункциональное тяжелое транспортное средство, сочетающее в себе возможности подъема и транспортировки. Он оснащен краном Palfinger SPS40000 с максимальной грузоподъемностью 16 тонн и крутящим моментом 40 тонно-метров. Пятисекционная телескопическая стрела полностью выдвигается на 19 метров и, вместе с функцией вращения на 360 градусов, обеспечивает гибкую работу в различных сценариях подъема. Шасси создано на базе серии HOWO NX, оснащено 9,7-литровым дизельным двигателем мощностью 273 кВт, работающим в паре с 10-ступенчатой коробкой передач и пневматической тормозной системой, что обеспечивает стабильную работу в сложных условиях эксплуатации.
Благодаря полной массе 31 тонна и внутренним размерам грузовой платформы 8150 × 2450 × 600 мм, он удовлетворяет потребности как в подъеме оборудования, так и в транспортировке строительных материалов. Выносные опоры обеспечивают полный размах 7,25 метра, гарантируя эксплуатационную устойчивость. Автокран HOWO грузоподъемностью 16 тонн Этот погрузчик особенно хорошо подходит для муниципального строительства и горнодобывающих работ. Благодаря высоте подъема 21,5 метра и максимальному рабочему радиусу 18,6 метра он обеспечивает эффективную координацию между подъемом тяжелых материалов и транспортировкой на средние и короткие расстояния.

CS TRUCKS — профессиональный производитель грузовых автомобилей.
Гарантируем, что вся продукция абсолютно новая и высокого качества.
»»I.Описание и представление продукта:
Производитель:CS TRUCKS
Характеристики продукта
▶ Надежное шасси: построено на базе усиленного шасси HOWO 8×4, грузоподъемность до 40 тонн.
▶ Мощный двигатель: дизельный двигатель SINOTRUK WD615.47 мощностью 371 л.с., рабочий объём 9,726 л.
▶ Прочный кран: оснащен телескопической стрелой PALFINGER SPS40000, максимальная грузоподъемность составляет 16 тонн.
▶ Большой бокс: Размер грузового бокса составляет 8150×2450×600 мм, он подходит для перевозки крупногабаритных грузов.
»» II. Параметры изделия для стрелового крана HOWO NXгрузовик:
| Технические параметры автомобиля | |
| Название продукта | Грузовик HOWO NX с краном Palfinger SPS40000 |
| Полная масса транспортного средства (кг) | 31000 |
| Снаряженная масса (кг) | 18660 |
| Габаритные размеры (мм) | 12000×2550×3930 |
| Колесная база (мм) | 1800+4600+1350 |
| Максимальное количество пассажиров | 3 |
| Угол въезда/съезда (°) | 17/11 |
| Передний/задний свес (мм) | 1550/2700 |
| Максимальная скорость движения (км/ч) | 89 |
| Технические параметры шасси | |
| Модель шасси | ХАВО НХ |
| Модель двигателя | WD615.47 |
| Тип топлива | Дизель |
| Количество цилиндров | 6 |
| Смещение | 9,726 л |
| Максимальная мощность | 371 л.с. (273 кВт) |
| Номинальная скорость | 2200 об/мин |
| Максимальный крутящий момент | 1500 Н·м |
| Скорость при максимальном крутящем моменте | 1100-1600 об/мин |
| Передача инфекции | HW19710, 10-скоростной |
| Нагрузка на переднюю/заднюю ось | 6500/7000/17500 кг |
| Количество осей | 4 |
| Количество рессор | 11/11/12 шт. |
| Тормоза | Пневматические тормоза |
| Размер шин | 12.00R20 |
| Количество шин | 12+1 шт. |
| Параметры крана | |
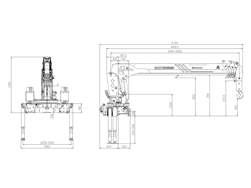
| Модель крана | Palfinger SPS40000 |
| Максимальный поднимаемый вес | 16 000 кг |
| Максимальный момент подъема | 40 мт |
| Максимальный охват | 18,6 м |
| Максимальная высота подъема | 21,5 м |
| Длина стреловой системы (в сложенном состоянии) | 6,23 м |
| Длина стреловой системы (в полностью выдвинутом состоянии) | 19 м |
| Количество секций стрелы | 5 |
| Рабочее давление | 32 МПа |
| Угол поворота | Полное вращение на 360 градусов |
| Аутригерный пролет (полностью расширенная версия) | 7250 мм |
| Параметры грузового отсека | |
| Внутренние размеры коробки (мм) | 8150×2450×600 мм |
| Материал | Углеродистая сталь |
| Толщина | Пол: 4 мм; Стены: 3 мм |

»» Ⅲ. ХАВО Преимущества шасси



»» Ⅵ. Технические характеристики крана Palfinger SPS40000:
![]() | ![]() |
| Модель | SPS40000 |
| Оценочный момент подъема | 40 мт |
| Номинальная грузоподъемность | 16000 кг (2,5 м) |
| Максимальный охват | 18,6 м |
| Макс. количество лесок на крючке | 6 |
| Угол поворота | Непрерывный |
| Угол подъема стрелы | 0 ~ 75° |
| Максимальная высота подъема (измерение от земли после полного выдвижения опор). | 21,5 м |
| Длина стреловой системы (в сложенном состоянии) | 6,23 м |
| Длина стреловой системы (в полностью выдвинутом состоянии) | 19 м |
| Секции стрелы | 5 |
| Размах опорных стоек (в полностью выдвинутом состоянии) | 7250 (мм) |
| Рекомендуемая скорость потока | 80 ~ 110 л/мин |
| Рабочее давление | 32 МПа |
| Рекомендуемая вместимость масляного бака | 300 л |
| Момент крена (динамический) | 913,8 кНм |
| 93,1 мт | |
| Крутящий момент (динамический) | 52,5 кНм |
| 5,4 мт | |
| Вес крана | 6000 кг |
1. Мы можем разработать дизайн в соответствии с вашими пожеланиями. в соответствии с вашими требованиями.
2. Мы можем предложить вамВысокое качество и разумная цена
3. Мы можем предложить вамнадежное послепродажное обслуживание
4. у нас естьквалифицированная команда профессиональных дизайнеров
5.Быстрая доставка. Принимаем любые заказы.
Компания CS TRUCKS также поставляет запасные части (оригинальные, OEM и запасные части) для всех типов специализированных грузовиков и прицепов HOWO со скидками и высоким качеством, чтобы обеспечить исправную работу грузовиков и прицепов наших клиентов.

Тяжелые автокраны SINOTRUK HOWO для экспорта

Автокран SINOTRUK HOWO, готовый к отгрузке.
Оставить сообщение
Отсканируйте и отправьте в WeChat/WhatsApp :